8381 SE Barlow LNHillsboro, OR 97123
Due to the health concerns created by Coronavirus we are offering personal 1-1 online video walkthough tours where possible.




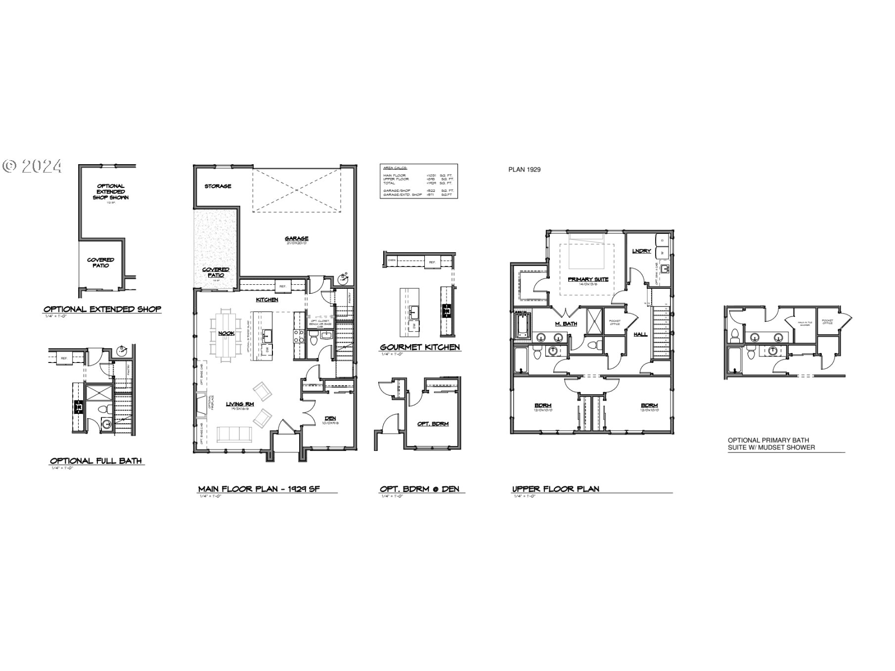
The 1929 floorplan combines thoughtful design with modern comfort. An open-concept main level creates a welcoming space, featuring a generous kitchen island, walk-in pantry, and direct access to a two car garage with soaring ceilings and extra storage. A convenient main-floor bedroom offers flexibility for guests or a home office. Upstairs, the primary suite includes a spa-inspired bath with soaking tub, walk-in shower, and private water closet. Two additional bedrooms complete the upper level. This move-in ready home comes with air conditioning, available concessions, and below-market financing options, making it both comfortable and affordable. Photos are from a completed home in the same community that has sold. [Home Energy Score = 10. HES Report at https://rpt.greenbuildingregistry.com/hes/OR10226277]
| 3 weeks ago | Listing updated with changes from the MLS® | |
| 3 weeks ago | Status changed to Pending | |
| 3 months ago | Listing first seen on site |
The content relating to real estate for sale on this website comes in part from the IDX program of the RMLS™ of Portland, Oregon. Real estate listings held by brokerage firms other than are marked with the RMLS™ logo, and detailed information about these properties includes the names of the listing brokers. Listing content is Copyright © 2026 RMLS™, Portland, Oregon. Some properties which appear for sale on this website may subsequently have sold or may no longer be available.
Last checked 2026-01-08 11:45 AM PST.
All information provided is deemed reliable but is not guaranteed and should be independently verified
Did you know? You can invite friends and family to your search. They can join your search, rate and discuss listings with you.